Exklusives Einfamilienhaus – Ihr neues Zuhause in ruhiger, familienfreundlicher Lage

Am Scheitenweg, 40589 Düsseldorf

Baujahr 2011
384m² Grundstücksgröße
303m² Wohn-/Nutzfläche
218m² reine Wohnfläche
4 Etagen
5-Zimmer
Einbauküche
3 Badezimmer + Gäste/WC
Fußbodenheizung
1 Garage
Energieeffizienz B

Ruhige Lage im Düsseldorfer Süden

Kaufpreis 1.300.000,00€

Lagebeschreibung

Das Grundstück befindet sich in dem ca. 2.000 Einwohner starken Stadtteil Düsseldorf-Himmelgeist, einer der begehrtesten Wohngegenden der Stadt. Die ruhige und idyllische Lage am Scheitenweg verbindet urbanes Wohnen mit dem Charme eines dörflichen Umfelds. Himmelgeist ist ein besonders familienfreundlicher Stadtteil, der durch seine grüne Umgebung und die direkte Nähe zum Rhein besticht.

  • Kindergärten, Schulen und Freizeiteinrichtungen: In unmittelbarer Nähe vorhanden, bieten ein ideales Umfeld für Familien
  • Verkehrsanbindung: Hervorragende Anbindung an die Düsseldorfer Innenstadt über gut ausgebauten ÖPNV und Autobahnen (A46, A57)
  • Täglicher Bedarf: Einkaufsmöglichkeiten und Ärztezentren in kurzer Entfernung erreichbar
  • Naherholung: Zahlreiche Möglichkeiten zum Spazieren, Radfahren und anderen Freizeitaktivitäten in der Natur
  • Universitätsklinikum Düsseldorf: In unmittelbarer Nähe, bietet Vorteile für Familien durch universitäre Einrichtungen und als großer Arbeitgeber

Flughafen Düsseldorf: Nicht weit entfernt, sorgt für zusätzliche Flexibilität bei Reisen

Objektbeschreibung

Das Grundstück befindet sich in dem ca. 2.000 Einwohner starken Stadtteil Düsseldorf-Himmelgeist, einer der begehrtesten Wohngegenden der Stadt. Die ruhige und idylli-sche Lage am Scheitenweg 132 verbindet urbanes Wohnen mit dem Charme eines dörf-lichen Umfelds. Himmelgeist ist ein besonders familienfreundlicher Stadtteil, der durch seine grüne Umgebung und die direkte Nähe zum Rhein besticht.

  • Kindergärten, Schulen und Freizeiteinrichtungen: In unmittelbarer Nähe vorhan-den, bieten ein ideales Umfeld für Familien
  • Verkehrsanbindung: Hervorragende Anbindung an die Düsseldorfer Innenstadt über gut ausgebauten ÖPNV und Autobahnen (A46, A57)
  • Täglicher Bedarf: Einkaufsmöglichkeiten und Ärztezentren in kurzer Entfernung erreichbar
  • Naherholung: Zahlreiche Möglichkeiten zum Spazieren, Radfahren und anderen Freizeitaktivitäten in der Natur
  • Universitätsklinikum Düsseldorf: In unmittelbarer Nähe, bietet Vorteile für Fami-lien durch universitäre Einrichtungen und als großer Arbeitgeber
  • Flughafen Düsseldorf: Nicht weit entfernt, sorgt für zusätzliche Flexibilität bei Rei-sen

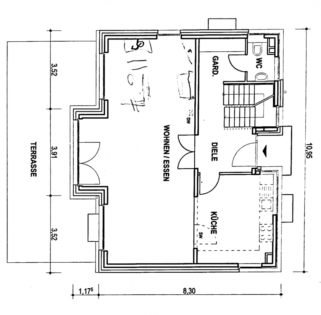
Erdgeschoss

  • Eingangsbereich mit Garderobe und Gäste-WC
  • Großzügiger Wohn-, Ess- und Küchenbereich
  • Wohnbereich mit bodentiefen Fenstern und Kamin für eine gemütliche Atmosphäre
  • Zugang zur Terrasse mit zeitlosen Terrassenfliesen und elektrischer Markise
  • Gepflegte Rasenfläche und hohe Hecke für ausreichend Sichtschutz und Privatsphäre

Kellergeschoss

  • Haustechnikraum mit Anschluss für Waschmaschine und Trockner
  • Zwei weitere Kellerräume, einer davon mit Echtholzparkett ausgestattet

Dachgeschoss

·     Großes Studio mit bodentiefen Fenstern

·   Dusch-WC mit Tageslicht

Obergeschoss

·      Zwei Kinderzimmer mit bodentiefen Fenstern

·      Master-Bedroom mit eigenem Ankleidebereich

·      Bad en Suite mit Badewanne, Dusche und Doppelwaschbecken

·      Gemeinsames Dusch-WC für die Kinderzimmer

·   Beide Bäder verfügen über Tageslicht

Gas Zentralheizung mit Solarthermie Unterstützung